tyが勝手に考えた
チャットを部屋にした時の想像図。
2度目の大規模改築です。前代の雰囲気を残しつつレイアウトを変えたような感じです。
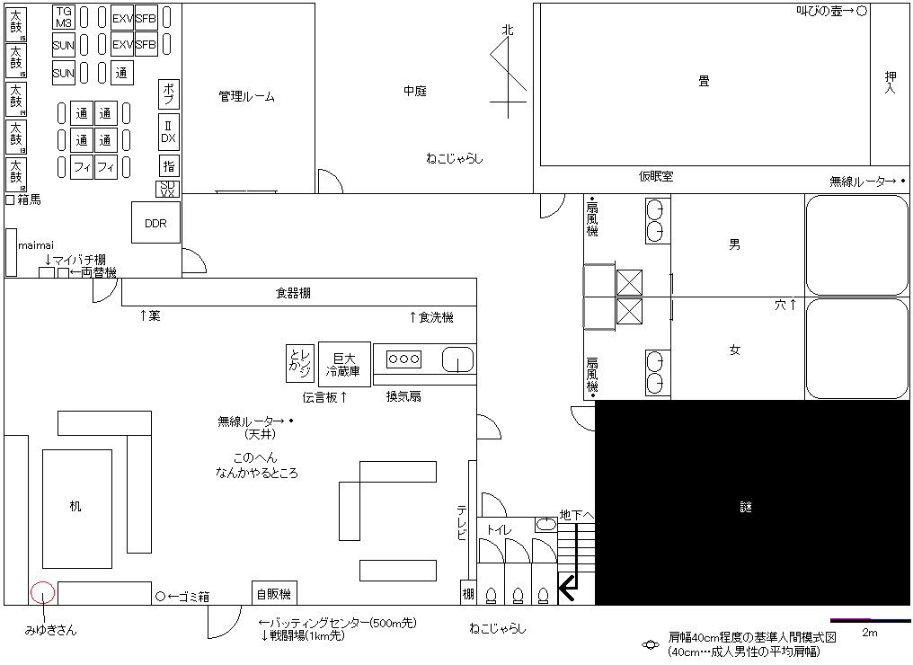
全体の間取り図
 
地下
 
携帯版以外で、大きすぎて見えないという人はページ下部の「添付ファイル」の中にある「チャット3.1.PNG」をクリックして下さい。
各部解説
【会館】
ぷよけーメンバー専用チャットを具現化させた時に出来る会館。
かなり無駄に巨大な面積を誇る。
そして衣食住が可能。
実在したらとんでもない建設費と生活費がかかるだろう。
【外】
灰色のペンキで塗りつぶされた壁が続く。
玄関…自動ドアではない。メンバー以外がノブを回そうとしても回らないようになっている。
中庭…日本庭園ではない。
ねこじゃらし…玄関横に続く壁のふもとや中庭にびっしりと生えている雑草。猫がいる時に摘む。
戦闘場…南へ1kmのところに存在する。会館内で乱闘が起こった時に度々誘導される場所。
バッティングセンター…東へ500mのところに存在する。何故か閑散としている。
【メインルーム】
玄関を入ってすぐの部屋。靴置き場はなく、靴のまま移動する。
ソファー…西側に4台、東側に3台。不自然な空間はみゆきさん専用スペース。
机…結構でかい。上にベルとおみくじボタンがある。
ゴミ箱…西側のソファーのそばにある。その隣に座った者はゴミ関連で確実にパシリ扱いされる。
自販機…コカコ○ラ製。
無線ルータ…天井にある。
通信対戦やネット接続には欠かせない。
テレビ…おそらく100インチ近くある。近づいて見るのはやめましょう。
棚…Wiiなどが置かれている。
巨大冷蔵庫…おそらく一ヶ月分の食料は余裕で入る。
システムキッチン…対面式のIH。
食器棚…巨大な食器棚。皿は100枚は超える。コップは専有物が多い。
薬…食器棚に置かれている。置き薬から頓服、化学薬品、劇薬、果ては媚薬や性転換薬まで様々。
食洗機…何故かシステムキッチンではなく食器棚に内蔵されている。
伝言板…冷蔵庫の裏に貼り付けられているホワイトボード。置き伝言に使われるほか、格好の落書き場所である。
デッドスペース…何も置かれていない真ん中の空間。複数人で遊んだりするときに使われる。
【廊下】
何故か全面じゅうたん。
トイレ…洋式トイレ×3。
階段…地下へ通じる。
【ゲームセンター】
小型の内蔵ゲームセンター。
太鼓の達人…言わずと知れた大衆向け音ゲー。最新機から12まである。
ポップンミュージック…9ボタン。
beatmaniaIIDX…7鍵。
DDR…パァーノゥ。
jubeat…16ボタン。
SOUND VOLTEX…疾走感400%。
maimai…洗濯機。
ぷよぷよ通…対面式2台と二人並ぶ方式の台が1台。
ぷよぷよフィーバー…対面式1台。
ぷよぷよSUN…二人並ぶ方式の台が2台。
TGM3…マゾ用最速テトリス。
EXVSFB…ガンダム。
箱馬…子供用の台。主に太鼓用。
両替機…札を100円玉に両替する。何故か外国の通貨でも両替してくれる。
マイバチ棚…太鼓用のマイバチを置くための台。ホコリが被っている。
【仮眠室】
仮眠を取るための部屋なのだが何故かそれ以外の使用用途の方が多い。
畳…床と30cm離れている、布団を敷くスペース。柔道は出来ない。と思う。
押入…布団がその時の人数分用意されている。
無線ルータ…ここでは壁に貼り付けられている。
叫びの壺…うっぷん晴らし専用の壺。
【風呂】
温泉は湧き出ない。
のれん…二枚ある。
洗濯機…男女それぞれある。乾燥機能付き。
洗面台…ドライヤー用のコンセントは下にある。
扇風機…男女それぞれある。風呂上がりの時に使う扇風機。
シャワー…最高45度のお湯が出る。
浴槽…無駄に広い。
覗き穴…誰かが開けた穴。何故か女→男の一方通行。穴が広がるとシャンプー流通口になるかも。
【管理ルーム】
関係者以外立ち入り禁止。
【謎】
階段の隣にある部屋。その部屋の正体が何であるかは誰も知らない。
【地下】
ひんやりとしている。
図書室…降りてすぐ広がる本棚。机完備。
ミュージックアトリエ…奥のドアから入れる。ライブ用ステージがある。ギターもキーボードも多い。
最終更新:2013年07月27日 13:47